Phone icon +84-364778343
Mail icon tvc00000@yahoo.com
Location icon Số 45 ngõ 67 đường Nguyễn Văn Cừ, Phường Ngọc Lâm, Quận Long Biên, Hà Nội
Facebook Instagram Twitter Google

Nhà ống Sài Gòn đem thiên nhiên vào nhà với hồ cá xinh xắn

22/02/2024

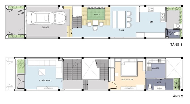
Chủ nhà ở quận Tân Bình (Tp.HCM) muốn nâng tầng và cải tạo nơi ở của mình được thoáng đãng và thoải mái hơn. Mảnh đất 76m2 có kích thước tiêu biểu của kiểu nhà ống Việt Nam với mặt tiền 4m, sâu 19m. Khi đi lại giữa các tầng, chủ nhà sẽ thường xuyên nhìn thấy cá bơi lội, cây xanh mát. 


 

Sau khi nghe mong muốn và dự trù kinh phí của chủ nhà, KTS Hồng Diễu, Hồ Quốc Hùng,
Nguyễn Hương và Đoàn Giang (G+ Architects) đưa ra giải pháp "cắt khúc"
nhà ống để giảm cảm giác sâu hun hút


 

Mỗi tầng được chia thành các khu vực chức năng riêng biệt, song vẫn có sự liên kết
mềm mại nhờ có cầu thang và hồ cá nằm trong khoảng sáng của giếng trời


 

Khi thiết kế, KTS đặt mình vào vai trò của chủ nhà với những thói quen thường nhật như:
Đi làm về, chạy xe vào nhà, bước lên thềm đi qua hồ cá rồi vào bếp ăn. Khi có khách,
chủ nhà sẽ mời họ lên thẳng phòng khách trên tầng mà không phải đi qua bếp nấu


 

Phòng bếp nằm kế bên 2 khoảng thoáng của giếng trời giữa và cuối nhà.
Trong lúc chờ bữa cơm, các con có thể vui chơi bên hồ cá nhỏ và kể cho
ba mẹ nghe những câu chuyện xảy ra trong ngày


 

Phòng bếp rộng mở, thoáng đãng nhìn ra sân nhỏ phía sau. Thiết kế
hệ tủ bếp lớn nhưng phẳng nên không tạo cảm giác nặng nề


 

Khu vực tiếp khách được bố trí trên tầng 2 tách biệt với các không gian khác,
không bị ảnh hưởng bởi mùi xe cộ, nhà bếp ở dưới tầng 1


 

Phương án chia nhà thành các khúc nhỏ giúp cho tất cả
các phòng đều có nhiều ánh sáng tự nhiên hơn


 

Phòng ngủ của các bé có diện tích vừa phải nhưng đầy đủ công năng với bàn học, tủ đồ,
chỗ ngồi chơi bên cửa sổ và tông màu phù hợp với tính cách của trẻ


 

Khu vực cầu thang với hồ cá, giếng trời vừa đem lại ánh sáng, thông gió, vừa tạo
ra cảm giác gần gũi với thiên nhiên sống động cho ngôi nhà


 

KTS còn bố trí thêm một vài mảng xanh tạo cảm giác
thư thái hơn cho các thành viên trong gia đình


 

Chủ nhà làm trong lĩnh vực cơ khí tự động, nên đã góp phần vào hoàn thiện ngôi nhà
với hệ lam xoay tự động giúp điều chỉnh ánh sáng ở giếng trời


 

Mặt bằng thiết kế nhà ống tầng 1 + tầng 2


 
Mặt bằng thiết kế nhà ống tầng 3 và sân thượng

(Theo Vnexpress)
 Nhà ống Sài Gòn đem thiên nhiên vào nhà với hồ cá xinh xắn