1. Mẫu căn hộ 28m² thiết kế đẹp phát mê
Căn hộ thứ nhất này có diện tích đúng 28m², tuy nhiên bất cứ ai khi đã bước vào đây sẽ không hề thấy cảm giác chật chội bí bách bởi nhìn căn hộ rất gọn gàng, ngăn nắp. Đặc biệt, dù khá nhỏ nhưng không gian sống vẫn đầy cuốn hút nhờ chất liệu gỗ tự nhiên sáng màu và những điểm nhấn trang trí màu sắc.

Căn hộ thoáng mắt và gọn gàng so với diện tích thực nhờ sự kết
hợp giữa màu trắng - gỗ sáng với nội thất nhỏ gọn

Sàn căn hộ giật cấp tách biệt riêng khu vực ngủ và phòng khách với khu nấu nướng, ăn uống. Kiểu
thiết kế căn hộ như vậy còn giúp chủ nhân có thể tận dụng không gian sàn để lưu trữ đồ đạc

Căn hộ nhỏ vẫn có góc làm việc khá lý tưởng nhờ chủ nhà khéo léo sử dụng nội thất đa chức năng

Phòng tắm nhỏ nhưng vẫn rất ngăn nắp nhờ thiết kế tận dụng góc nhà thông minh

Chiếc gương với hình dáng độc đáo giúp phòng tắm thu hút, thú vị hơn

Logia căn hộ tuy nhỏ nhưng gần gũi với thiên nhiên nhờ màu xanh của cây cỏ

Một bàn làm việc nhỏ cũng được bố trí ở logia để gia chủ dùng khi cần thiết
2. Mẫu căn hộ 28,7m² phong cách tối giản
Căn hộ thứ hai này có diện tích sàn là 28,7m² với phong cách bài trí tối giản. Nhờ vậy dù nhỏ nhưng nó vẫn rất đầy đủ tiện nghi và mang đến cảm giấc ấm áp, thoải mái cho người sử dụng. Chủ nhà sử dụng gam màu trắng chủ đạo, đồng thời khéo léo kết hợp với các họa tiết trang trí độc đáo ở trần nhà để không gian sống không bị đơn điệu.

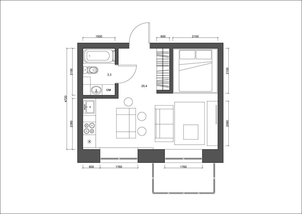
Sơ đồ thiết kế của căn hộ 28,7m2

Lối vào căn hộ được chủ nhà tận dụng làm nơi bố trí tủ đồ. Kiểu tủ âm
tường cánh phẳng là giải pháp lưu trữ tối ưu cho nhà nhỏ

Giường ngủ và ghế sofa phòng khách đặt liền kề nhau và được phân
chia bằng một tấm rèm để dùng khi cần riêng tư

Khu vực tiếp khách được bài trí siêu đơn giản. Chiếc ghế nệm bồng bềnh vừa đẹp
mắt vừa giúp chủ nhân ngồi thư giãn xem tivi hay đọc sách

Phòng ngủ thiết kế đơn giản nhưng thú vị và tận dụng phần gầm giường làm không gian lưu trữ chăn gối

Do căn hộ có diện tích nhỏ nên chủ nhà lựa chọn khu bếp có thiết
kế tối giản, bàn ăn kiêm ngăn lưu trữ bát đĩa

Bồn rửa, máy giặt, kệ lưu trữ được tính toán kĩ lưỡng để phù hợp với phòng tắm nhỏ gọn
+84-364778343